Podnájem bytu 3 + 1 v rodinném domě v Pomezí u Poličky -
 Datum vložení: 19. 4. 2023 0:00
| flidrova.net@seznam.cz | |
| Telefon | 725151606 | 
| Inzerent | Marie Flídrová | 
| Stát | Česko | 
|---|---|
| Typ inzerátu | nabídka pronájmu | 
| Kategorie | byty | 
| Lokalita | Pomezí u Poličky | 
| Dispozice | 3 + 1 | 
| Plocha (přibližná) | 50 - 100m2 | 
|---|---|
| Plocha | 0 m² | 
| Kraj | Pardubický kraj | 
| Okres | Svitavy | 
| Cena [Kč] | 12 Kč | 
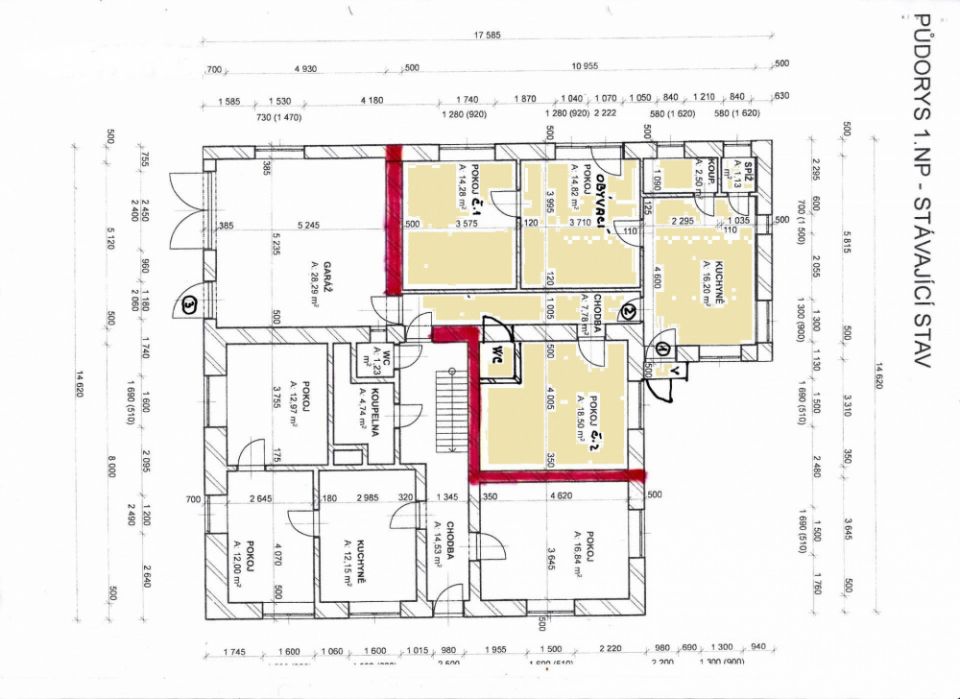
V rodinném domě o dvou bytových jednotkách v Pomezí u Poličky nabízím k pronájmu jednu bytovou jednotku o velikosti 3+1 /cca74m2/-viz. plánek-vyznačená část. Zařízení, mimo kuchyňské linky, vlastní, Parkování vedle domu. 
Nájemné 12.000 Kč měsíčně + 4.500 Kč zálohy. Kauce ve výši dvou nájmů ,t.j.24.000 Kč.
 
 
 
 
 
 
 
 
 
 
 
 
 
 
 
 
 
 
 
 
 
 
 
 
 
 
 
 
 
