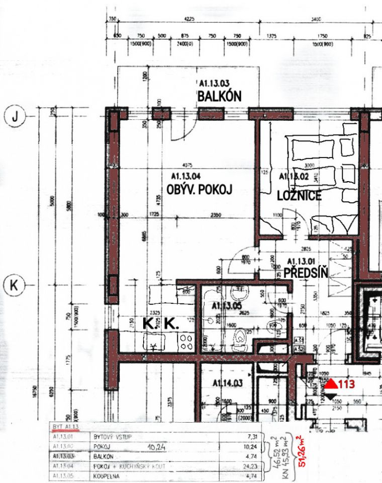
Hledáme nájemce pro dlouhodobý pronájem zařízeného slunného a teplého bytu 2+kk, 52 m2 v 3. NP cihlového zatepleného domu s výtahem v Elektrárenské ulici č.p. 1484/11 (obytný soubor Nový Bohdalec). Dispozice - obývací pokoj s kuch. koutem (24,2 m2) a balkónem (4,7 m2), lo6nice (10,2 m2), koupelna s vanou, bidetem a WC (4,7 m2), vstupní předsíň (7,3 m2). K bytu náleží sklepní kóje pro uložení věcí v 1.PP. V pokojích plovoucí podlahy, v kuchyni a ostatních místnostech (i na balkóně) dlažba. Okna plastová se žaluziemi, orientovaná na jih (KK) a západ do vnitrobloku (atrium) se zelení. Kuchyňská linka je vybavená chladničkou s mrazákem, varnou deskou, digestoří s odtahem, mikrovlnou troubou, varnou konvicí a pračkou. Další vybavení - sklápěcí jídelní stolek, kožená rozkládací sedačka (1,5 lůžka), křeslo, stolek a TV, skříňky, předsíňové skříně a botník, manželská postel 200x160, noční stolky, šatní skříně, peřník, ... Dispozice a vybavení bytu jsou zřejmé z přiloženého půdorysu a z fotografií.
Vzhledem k dispozičnímu uspořádání a vybavení je byt vhodný pro jednu, max dvě osoby (pár). Zaměstnání nebo jiný stabilní příjem je podmínkou!
Měsíční nájemné za byt navrhujeme 17.900,-Kč + zúčtovatelné zálohy na služby spojené s užíváním bytu (aktuální předpis na 2 os. ve výši 3.400 Kč/měs). Zálohy na elektřinu navrhujeme na základě současné smlouvy s PRE činí 1200 Kč/měs. Internet možno zřídit přes UPC (kabelový rozvod) či jiného poskytovatele (telefonní zásuvka). Třída ENB je C - úsporná.
Je požadována vratná kauce ve výši 30.000,-Kč, žádná provize (nenabízeno přes RK).
K bytu je možný pronájem garážového stání ve společném garážovém prostoru v 1. PP za 1.600,- Kč/měs od jiného majitele.
Dům se nachází v klidné lokalitě s dobrou dostupností, autem na Jižní spojku i dálnici D1, MHD do centra (10 min. autobusem na metro Želivského nebo Flora, kde je nákupní a zábavní centrum). Základní infrastruktura je k dispozici pod bohdaleckým kopcem ve Vršovicích nebo na opačné straně v Záběhlicích. Možnosti pro vyznavače sportovních a rekreačních aktivit - v docházkové vzdálenosti je stadion Slavie s fotbalovým hřištěm, plaveckým a zimním stadionem, fitness. Řadu možností k relaxaci nabízí také moderní areál Hamr sport s tenisovými kurty, squashem, tělocvičnou pro aerobik. Dále Hamerský rybník, kde se dá v zimě bruslit, a kolem Botiče vedou cyklostezky až k Hostivařské přehradě.
Nákupní možnosti v nedalekém supermarketu Kaufland nebo v nákupním centru Eden naproti stadionu Slávie (8 minut pěšky).
Další informace, případně video zašleme na vyžádání na uvedeném tel. čísle.
Prohlídky jsou zatím možné pro vážné zájemce po dohodě se stávajícími nájemci (obsazeno do 31.3.).
K nastěhování od 04/2025.